株式会社GAパートナーズ [GA PARTNERS]

中古物件情報

Used Property Listings

ソシオ大手町

ソシオ大手町
マンション

帰りたくなる場所

  • 2022年築の築浅、電停徒歩2分の街中物件です!
  • 大容量ウォークインクローゼット+シューズインクローゼットで収納大満足のお部屋です!
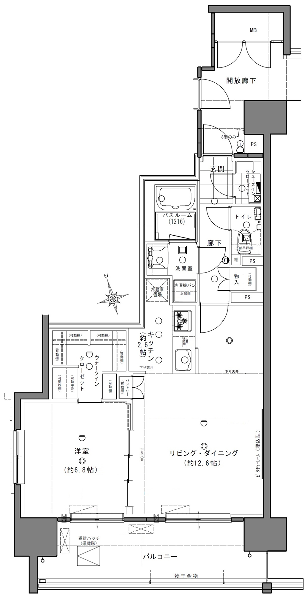
  • 洋室6.8帖、LDK15.2帖を扉を開ければ20帖超の広々空間! スタディールームやパーティールームなど共用施設
  • 充実の大規模マンション!

広島市中区大手町5丁目
広島電鉄宇品線「鷹野橋」徒歩2分
1LDK / 55.06㎡

販売価格

4,150万円
  • リビングダイニング
    リビングダイニング

    1LDKでもLDKは15帖以上のゆったりした広さです。お気に入りの大きなソファも大画面を設置しての映画やゲームもストレスなく楽しめそうです!

  • 眺望
    眺望

    南向きの明るいお部屋です。現地からの眺望(2025年7月)撮影

  • キッチン
    キッチン

    自炊派でも3つ口コンロならストレスなく作業が進みそうです。

  • 主寝室
    主寝室

    3枚の引き戸でLDKときっちり区切って使うことも、すべて開け放して1ルームの様に使うこともできる洋室です。

  • WIC
    WIC

    洋室のウォークインクローゼットです。バッグなどの小物を整理できる棚はもちろん、布団などもおける大きな棚まである大容量すぎるクローゼットです。

  • 洗面・浴室
    洗面・浴室

    浴室にはハンバーパイプもついています。広さもしっかりあるので、朝の支度も夜のリラックスバスタイムも快適に過ごせそうです。

  • エントランスロビー
    エントランスロビー

    エントランスロビーです。応接が窓側に2セットあり、待ち合わせや簡潔な打合せ等に活用できます。

  • エントランスホール
    エントランスホール

    高級感漂うエントランスホールです。

GAパートナーズスタッフから

いつでもご見学可能です。
お気軽にお問い合わせください。

フロアマップ
マンション
販売価格4,150万円
物件名 ソシオ大手町
住 所 広島市中区大手町5丁目
交 通 広島電鉄宇品線「鷹野橋」徒歩2分
広さ 55.06㎡(16.66坪)
バルコニー 12.82㎡(3.88坪)
構造 鉄筋コンクリート造
階層 帰りたくなる場所
総戸数 177戸
築年月 2022年1月
現況 空室
引越し 即時
管理方法 通勤管理
管理会社 株式会社GMアソシエ
管理費 6,060円
修繕積立金 3,300円
駐車場 要確認
土地権利 所有権
ペット 可(管理規約による制限有)
取引態様 仲介
その他 -
担当者 宮崎
情報更新日 2025.07.11

不動産売却なら、やっぱりGAパートナーズ

中古マンションだけではありません! 戸建も土地もお任せください!
売却に迷われている方からのご相談もお受けしております。